Broomhill Pool restoration plans presently on hold.
Had Covid not struck, Broomhill Pool would have been restored and reopened in 2021.
Fusion Lifestyle (along with the entire leisure sector) was hit for six during and after covid. Fusion has been legally involved with the pool since 2011, official applicant for the NLHF grant since 2015, and legal lessee since 2019.
However, post covid they have been unable to provide the financial certainty required by NLHF to unlock their ยฃ6.8m grant.
The Broomhill Pool Trust believes that both Ipswich Borough Council and National Lottery Heritage Fund want the project to proceed.
We hope that they can agree amicably with Fusion Lifestyle to step aside, so that IBC & NLHF can move forward swiftly, providing the financial platform and certainty required for the restoration to begin.
The Trust will continue to lobby positively for this outcome.

Site Section

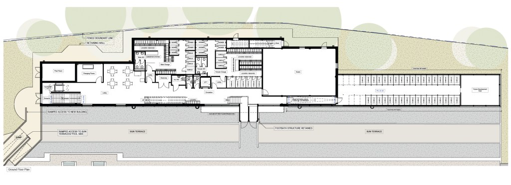
Ground Floor Plan

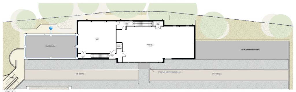
First Floor Plan
Images by KLH Architects, Ipswich
